Vente 03 88 49 02 16
Location 03 88 49 02 16
Gestion 03 88 49 76 86

3P de 70m² à Wisches

67130 Wisches

Nouveau à Wisches ! Résidence neuve « Le Séquoia », a proximité de toutes les commodités, à 5 minutes de Schirmeck et 30 minutes de Strasbourg. Le village de Wisches offre un calme apaisant, son lot de randonnées en forêt et de tranquillité. On y trouve, une école maternelle ainsi qu’une école élémentaire, une boulangerie, une médiathèque ainsi qu’une pharmacie.

La résidence « Le Sequoia » est un immeuble de 3 étages qui compte au total, 14 logements ainsi que nombreux garages et places de parkings.

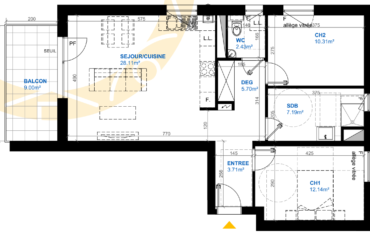
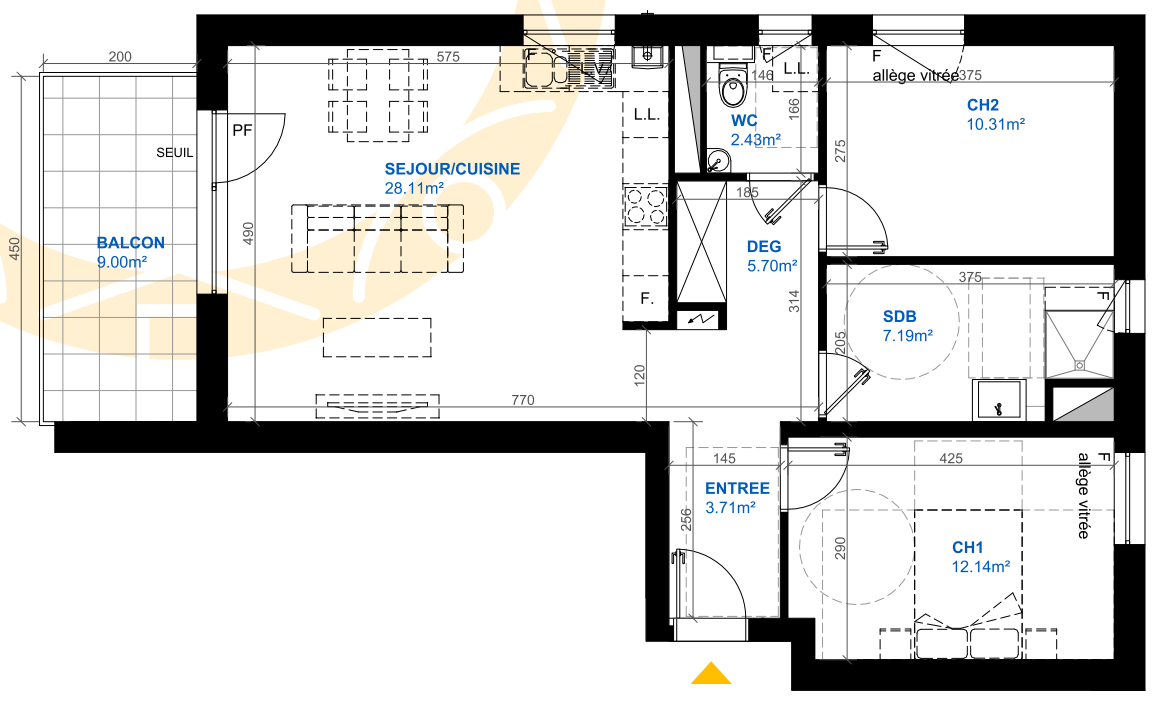
L’appartement 3P de 70m² situé au premier étage comprend : 1 entrée, 1 séjour + cuisine, 2 chambres, 1 salle d’eau, 1 WC, 1 dégagement, 1 balcon de 9m²

DPE : C

Chauffage gaz individuel avec plancher chauffant dans l’ensemble des pièces

Prix : 192 000€ (sans parking ni garage), 210 000€ (avec 1 place de parking et 1 garage)


210000€ soit 2760€ m2
Référence de l'annonce 22115

3 pièces
70 m2